top of page
HOME
NOSOTROS
ARQUITECTURA
Vivienda
Culto y Cultura
Servicios
Educación
Comercio
Espacio Público
Industria y Transporte
Seguridad y Organización
Deporte
Salud
CONSTRUCTORA
Vivienda
Culto y Cultura
Servicios
Educación
Comercio
Espacio Público
Industria y Transporte
Seguridad y Organización
Deporte
Salud
INMOBILIARIA
Propiedades
SUSTENTABILIDAD
CONTACTO
More
Use tab to navigate through the menu items.
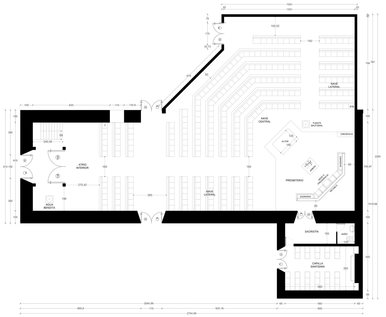
Parroquia Monte Patria
grupozubiaurre
1 may 2025
0 Min. de lectura
Entradas relacionadas
Ver todo
Cancha Hispano
Liceo La Cruz
Colegio Carlo Magno
Comentarios
Escribir un comentario...
Escribir un comentario...
bottom of page
Comentarios